PONTE VALLECEPPI - NUOVA COSTRUZIONE

185.000 €
80 m²
Superficie
3
Locali
2
Camere
2
Bagni
in vendita
appartamento
Perugia [Ponte Valleceppi]
Descrizione
Ponte Valleceppi – Appartamento di nuova costruzione in classe energetica A+ con giardino privato

In contesto residenziale tranquillo e riservato, a pochi passi dai principali servizi, Super Immobiliare propone in vendita appartamento in quadrifamiliare di prossima realizzazione, progettato secondo i più moderni standard abitativi.

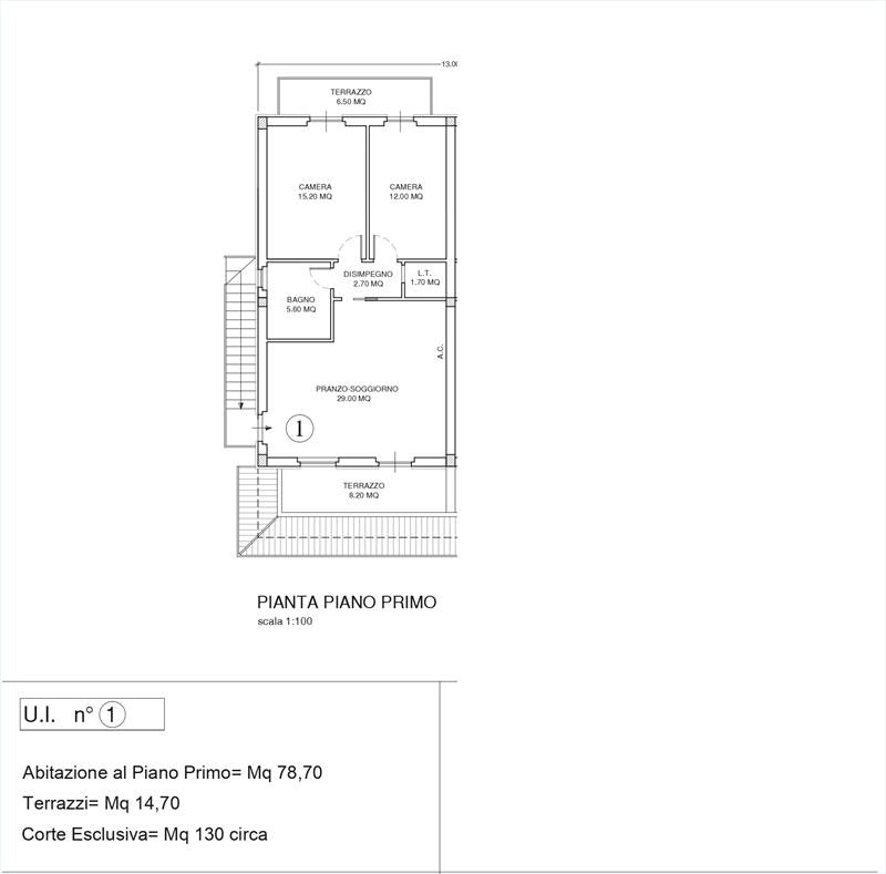
L’immobile, situato al primo piano, sviluppa una superficie di circa 80 mq ed è arricchito da spazi esterni vivibili, giardino privato di circa 130 mq e posto auto esclusivo all’interno della proprietà.

L’abitazione si compone di ingresso, luminoso soggiorno, camera matrimoniale, cameretta e due bagni, di cui uno finestrato.
Sia la zona giorno che la zona notte affacciano su due terrazzi abitabili, ideali per pranzi e cene all’aperto in un’atmosfera di totale relax.

Completa la proprietà un ampio giardino privato, perfetto per chi desidera vivere uno spazio verde esclusivo, garantendo privacy e qualità della vita.

La costruzione sarà realizzata con tecnologie di ultima generazione e sarà certificata in classe energetica A+, dotata di:

riscaldamento a pavimento

caldaia a condensazione

pannelli fotovoltaici

cappotto termico ad alte prestazioni

Le rifiniture interne sono personalizzabili, per adattare gli ambienti alle proprie esigenze e al proprio stile.

Soluzione ideale per chi cerca comfort moderno, efficienza energetica e spazi esterni vivibili, in una zona residenziale silenziosa ma perfettamente collegata ai servizi.

Per trovare la Tua Casa ora c’è il Property Finder
L’idea nasce nel 2017 dalla visione e volontà di un gruppo di agenti immobiliari, soci e amici che decidono di condividere un “Metodo” di lavoro che fonde l’esperienza trentennale dei più anziani con l’entusiasmo dei più giovani.
Un “Metodo” che si ispira al concetto di specialista di zona declinato, in molti altri Paesi, nella figura del Property Finder, per soddisfare con un servizio di alta qualità le esigenze di acquirente e venditore.
Infatti, grazie all’ “Incarico di Acquisto” e alla conoscenza del proprio territorio, l’agente immobiliare, specialista di zona, Property Finder, analizza nel dettaglio le esigenze dell’acquirente, dalla tipologia di appartamento ai tempi di acquisto e modalità di pagamento ed inizia una ricerca mirata dell’immobile tra le offerte di privati, costruttori ed altri agenti/agenzie, con evidenti vantaggi (tempi, valore di mercato etc) per acquirenti e venditori.
AfFidarsi allo specialista di zona, rappresenta il nuovo e più sicuro modo di comprare e vendere la Tua Casa.
Caratteristiche principali
Codice:
V003518
Città:
Perugia (Ponte Valleceppi)
Categoria:
Appartamento
Locali:
3
Camere:
2
Bagni:
2
Mq:
80
Posti auto:
1
Mq Giardino:
130
Piano:
1
Classe energetica:
A+
Stato Immobile:
Prossima Realizzazione
Planimetrie
Mappa
Via del Salice - Perugia (PG)
Cookie preference