STUDIO MEDICO A PONTE SAN GIOVANNI

82.000 €
95 m²
Superficie
4
Locali
3
Camere
1
Bagni
in vendita
ufficio
Perugia [Ponte San Giovanni]
Descrizione
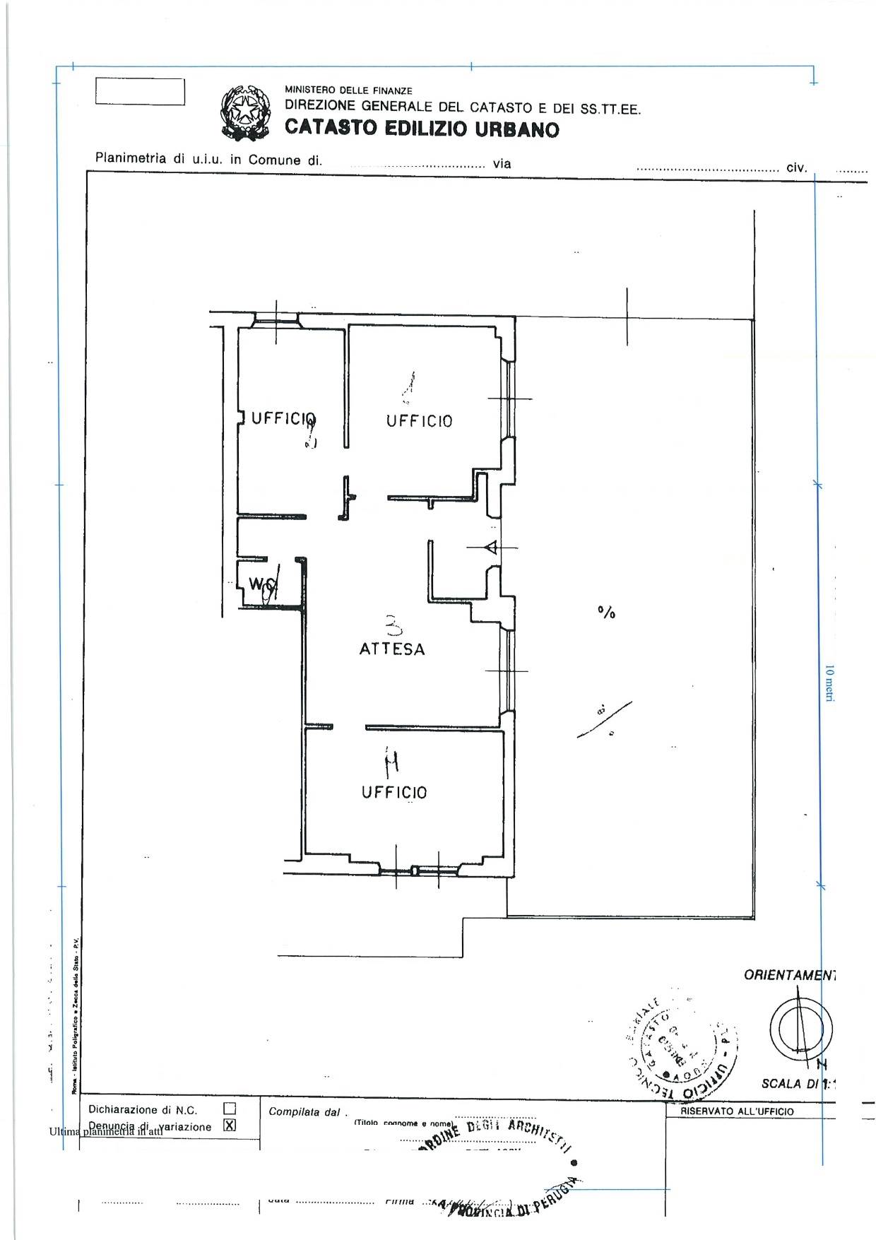
Proponiamo in vendita funzionale locale commerciale ad uso ufficio, precedentemente adibito a studio medico situato in una zona strategica, caratterizzata dalla presenza di tutti i principali servizi e da un contesto urbano dinamico e ben servito. L’immobile, luminoso e ben distribuito, si compone di un’accogliente reception, ideale per la gestione professionale dei pazienti, tre ampi e confortevoli ambulatori adatti a diverse specializzazioni, un bagno e un gradevole terrazzo che contribuisce a rendere gli spazi ariosi e piacevoli.

Elemento distintivo e di grande valore è l’ampio lastricato ad uso esclusivo, una superficie esterna versatile e preziosa che offre interessanti potenzialità di utilizzo.
L’immobile presenta inoltre la concreta possibilità di cambio di destinazione d’uso, rappresentando così una soluzione estremamente interessante e strategica per chi desidera personalizzare gli ambienti in funzione delle proprie esigenze imprenditoriali o professionali.
Caratteristiche principali
Codice:
V003599
Città:
Perugia (Ponte San Giovanni)
Categoria:
Ufficio
Spese condominiali:
120 € / anno
Locali:
4
Camere:
3
Bagni:
1
Mq:
95
Terrazzi:
1
mq Terrazzo:
95
Piano:
Terra
Anno:
1965
Classe energetica:
Non applicabile
Stato Immobile:
Abitabile
Grado:
Medio
Posizione:
Centro
Panorama:
Vista Aperta
Lati Liberi:
3
Giardino:
No
Arredi:
Non Arredato
Tipo Soggiorno:
Salone
Tipo Cucina:
A Vista
Riscaldamento:
Autonomo
Tipo Riscaldam.:
Caldaia
Tipo Impianto:
Radiatori
Fonte Energetica:
Metano
Acqua Calda:
Autonoma
Raffrescamento:
Split
Infissi:
Legno
Accessori
Fibra Ottica
Virtual tour
Mappa
Via Nino Bixio - Perugia (PG)
Cookie preference