TRILOCALE IN PALAZZINA DI NUOVA COSTRUZIONE

168.610 €
100,2 m²
Superficie
3
Locali
2
Camere
2
Bagni
1
Box
in vendita
3 locali
Marsciano [Paese]
Descrizione
A Marsciano in tranquilla zona residenziale immersa nel verde, proponiamo in vendita un luminoso appartamento posto al piano primo di una palazzina di recente costruzione in classe A4+ di soli tre piani, dotata di ascensore, progettata secondo moderni criteri di efficienza energetica e comfort abitativo.

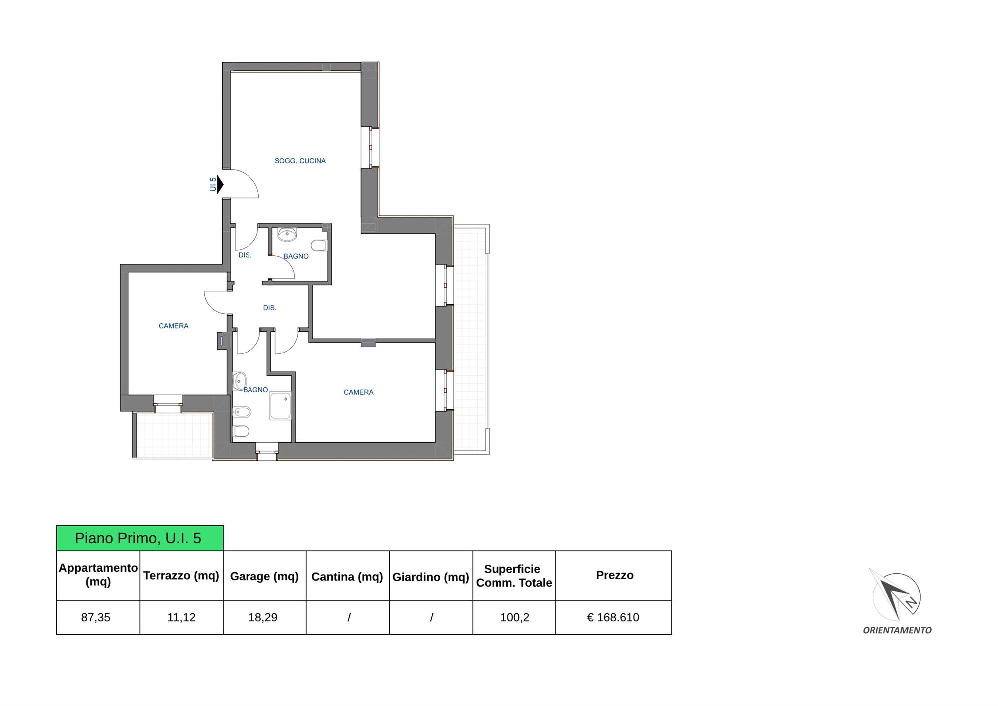
L’abitazione, di circa 87 mq, è composta da un ingresso che conduce alla zona living con soggiorno e cucinotto. L’ambiente è valorizzato da ampia porta finestra che garantisce grande luminosità naturale e collegano direttamente il cucinotto ad un terrazzo, ideale per momenti di relax.

Dalla zona giorno, mediante un disimpegno, si raggiunge la zona notte composta da due camere da letto matrimoniali, di cui una con affaccio sul terrazzo e due bagni entrambi con doccia di cui uno finestrato.

Le finiture interne sono moderne e sobrie: pavimentazione in grès porcellanato di grande formato dai toni neutri, pareti chiare che amplificano la luminosità degli ambienti, infissi moderni con ampie superfici vetrate, e impianto di riscaldamento autonomo con radiatori a parete di nuova generazione con impianto fotovoltaico di uso esclusivo con potenza pari a 2kWp.

Gli spazi risultano lineari, luminosi e facilmente personalizzabili nell’arredo.

Completano la proprietà un ampio garage sito al piano seminterrato di 18 mq c.a. e posti auto scoperti condominiali.

L’immobile inoltre dispone di: predisposizione per condizionamento ad espansione diretta (split + unità esterne), predisposizione allarme a filo, persiane Classe 3 antieffrazione, portone blindato e predisposizione dell’addolcitore in garage.

Oltre alle pertinenze private, la proprietà dispone di spazi esterni condominiali, tra cui un terreno comune di circa 1.231 mq, utilizzabile come area verde/parco condominiale, con possibilità di realizzare una piscina comune oppure di suddividerlo tra i condomini per la creazione di orti privati o altre destinazioni condivise.

La soluzione rappresenta un’ottima opportunità per chi desidera vivere in un contesto tranquillo e verde, senza rinunciare alla comodità dei servizi e alla qualità di una costruzione recente ed efficiente, inoltre è possibile visionare altri appartamenti con diversi tagli, piani e metrature.
Caratteristiche principali
Codice:
V003584
Città:
Marsciano (Paese)
Categoria:
3 locali
Locali:
3
Camere:
2
Bagni:
2
Mq:
100,2
Box:
1
Mq Box:
18
Posti auto:
1
Terrazzi:
2
mq Terrazzo:
11
Piano:
1
Anno:
2025
Classe energetica:
A4
Stato Immobile:
Nuovo
Grado:
Signorile
Posizione:
Periferia
Panorama:
Vista Aperta
Orientamento:
Est Sud Ovest
Lati Liberi:
2
Giardino:
No
Arredi:
Non Arredato
Tipo Soggiorno:
Soggiorno
Tipo Cucina:
Cucinotto
Riscaldamento:
Autonomo
Tipo Riscaldam.:
Caldaia a Condensazione
Tipo Impianto:
Radiatori
Fonte Energetica:
Metano
Acqua Calda:
Autonoma
Raffrescamento:
Predisposizione
Infissi:
PVC Doppio Vetro
Serramenti:
Nuovo
Persiana:
Persiana Metallo
Pavim. Giorno:
Gres Porcellanato
Pavim. Notte:
Gres Porcellanato
Pavim. Cucina:
Gres Porcellanato
Pavim. Bagno:
Gres Porcellanato
Accessori
Ascensore
Doppi Vetri
Fibra Ottica
ImpiantoFotovoltaico
Pannelli Solari
Passaggio Automobilistico
Passaggio Pedonale
Porta Blindata
Video Citofono
Virtual tour
Mappa
Via Orvietana - Marsciano (PG)
Cookie preference