VILLETTA BIFAMILIARE

1 / 3
Foto annuncio
Foto annuncio
298.000 €
125 m²
Superficie
3
Locali
2
Camere
1
Bagni
in vendita
villa bifamiliare
Perugia [Ponte Valleceppi]
Descrizione
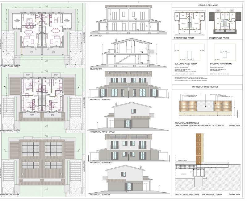
In zona Ponte Valleceppi, all’interno di un contesto residenziale tranquillo e riservato, vicino a tutti i principali servizi, caratterizzato da ville singole e soluzioni semi-indipendenti, proponiamo villa bifamiliare di nuova costruzione in classe energetica A2, progettata per garantire comfort abitativo, elevata efficienza energetica e qualità costruttiva.

L’abitazione si sviluppa su due livelli.
Al piano terra, l’ingresso conduce a un luminoso soggiorno con angolo cottura e zona pranzo, ambiente accogliente e ben distribuito; completa il piano un bagno finestrato.
Il primo piano, dedicato alla zona notte, ospita due ampie camere matrimoniali, una cameretta e un secondo bagno, studiato per offrire la massima funzionalità.

La superficie interna complessiva è di circa 125 mq.
Completano la proprietà un comodo portico, ideale anche come posto auto coperto, e un giardino esclusivo di circa 120 mq, perfetto per momenti di relax all’aperto.
All'esterno la bifamiliare si presenta al piano terra con mattoncino faccia vista, mentre al primo piano è dotata di cappotto termico di ultima generazione.

L’immobile è dotato di riscaldamento a pavimento, impianto fotovoltaico e pompa di calore, oltre a infissi di nuova generazione con interno in PVC ed esterno in alluminio, soluzioni che garantiscono elevate prestazioni energetiche e bassi consumi, in linea con le più moderne esigenze abitative

Per trovare la Tua Casa ora c’è il Property Finder
L’idea nasce nel 2017 dalla visione e volontà di un gruppo di agenti immobiliari, soci e amici che decidono di condividere un “Metodo” di lavoro che fonde l’esperienza trentennale dei più anziani con l’entusiasmo dei più giovani.
Un “Metodo” che si ispira al concetto di specialista di zona declinato, in molti altri Paesi, nella figura del Property Finder, per soddisfare con un servizio di alta qualità le esigenze di acquirente e venditore.
Infatti, grazie all’ “Incarico di Acquisto” e alla conoscenza del proprio territorio, l’agente immobiliare, specialista di zona, Property Finder, analizza nel dettaglio le esigenze dell’acquirente, dalla tipologia di appartamento ai tempi di acquisto e modalità di pagamento ed inizia una ricerca mirata dell’immobile tra le offerte di privati, costruttori ed altri agenti/agenzie, con evidenti vantaggi (tempi, valore di mercato etc) per acquirenti e venditori.
AfFidarsi allo specialista di zona, rappresenta il nuovo e più sicuro modo di comprare e vendere la Tua Casa.
Caratteristiche principali
Codice:
V003517
Città:
Perugia (Ponte Valleceppi)
Categoria:
Villa Bifamiliare
Locali:
3
Camere:
2
Bagni:
1
Mq:
125
Mq Giardino:
130
Balconi:
1
Terrazzi:
1
Anno:
2025
Classe energetica:
A2
Stato Immobile:
In Costruzione
Grado:
Medio
Posizione:
Periferia
Panorama:
Vista Aperta
Orientamento:
Nord Ovest Sud Est
Lati Liberi:
4
Giardino:
Privato
Arredi:
Non Arredato
Tipo Soggiorno:
Soggiorno
Tipo Cucina:
Angolo Cottura
Riscaldamento:
Autonomo
Tipo Riscaldam.:
Pompa di Calore
Tipo Impianto:
Pavimento
Fonte Energetica:
Fotovoltaico
Acqua Calda:
Autonoma
Raffrescamento:
No
Accessori
ImpiantoFotovoltaico
Planimetrie
Mappa
Via Casciolano - Perugia (PG)
Cookie preference