PORZIONE DI CASA A MAGIONE

155.000 €
340 m²
Superficie
7
Locali
7
Camere
3
Bagni
1
Box
in vendita
porzione di casa
Magione [Case Nuove]
Descrizione
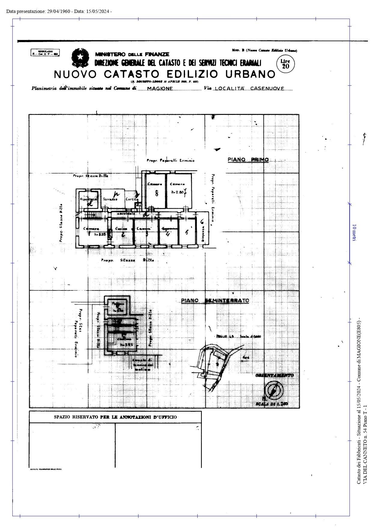
Situata in una tranquilla e verdeggiante zona residenziale nel comune di Magione, proponiamo in vendita una splendida porzione di casa disposta su due livelli.
La soluzione si presenta così composta:
Al primo piano, l'ingresso conduce ad un ampio soggiorno, ideale per momenti di relax e convivialità, una cucina abitabile, dotata di un caratteristico camino e affaccio su un balcone, tre spaziose camere matrimoniali, una camera singola e due bagni, garantendo comfort e privacy per tutta la famiglia.
Al piano terra, si trova un ampio rustico ricavato da un ex mulino storico, che conserva il fascino del passato e offre un ambiente unico per serate speciali servito di ulteriore bagno.
A completare la proprietà abbiamo un lastrico di c.a 40 mq con forno, ideale per organizzare cene e feste con gli amici al quale si può accedere sia dall'esterno che dal primo piano, un pozzo e una corte esclusiva di c.a 400 mq.
Questa proprietà rappresenta un'opportunità unica per chi desidera vivere immerso nella natura senza rinunciare alle comodità. Non perdere l'occasione di visitare questa casa dal carattere unico!
Caratteristiche principali
Codice:
V003512
Città:
Magione (Case Nuove)
Categoria:
Porzione di Casa
Locali:
7
Camere:
7
Bagni:
3
Mq:
340
Box:
1
Posti auto:
1
Mq Giardino:
500
Balconi:
1
Terrazzi:
1
Piano:
Terra
Anno:
1800
Classe energetica:
Non applicabile
Stato Immobile:
Buono
Grado:
Medio
Posizione:
Periferia
Panorama:
Vista Aperta
Lati Liberi:
3
Giardino:
Privato
Arredi:
Semi Arredato
Tipo Soggiorno:
Soggiorno
Tipo Cucina:
Abitabile
Riscaldamento:
Autonomo
Tipo Riscaldam.:
Caldaia
Tipo Impianto:
Radiatori
Fonte Energetica:
Metano
Acqua Calda:
Autonoma
Raffrescamento:
No
Infissi:
PVC Doppio Vetro
Accessori
Antifurto
Portineria/Custode
Video Citofono
Mappa
Via dei Mulini - Magione (PG)
Cookie preference