ESCLUSIVO LOFT AD AGELLO

274.000 €
171 m²
Superficie
3
Locali
2
Camere
2
Bagni
in vendita
loft
Magione [Agello]
Descrizione
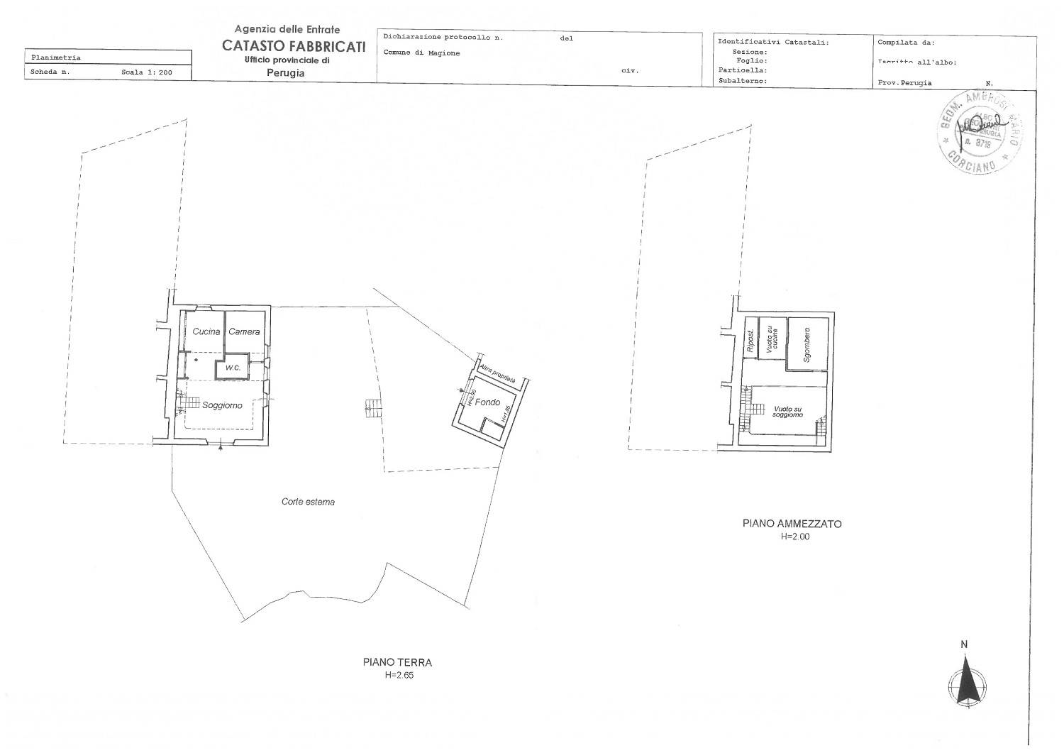
Agello, in posizione dominante sulle incantevoli colline umbre, all’interno di un contesto esclusivo e riservato, proponiamo in vendita uno splendido loft finemente ristrutturato, caratterizzato da ambienti luminosi, finiture di alto livello e una vista panoramica di rara bellezza.

La proprietà si sviluppa su due livelli e si compone di un ampio e accogliente living con doppia scala che conduce al soppalco, dove trovano spazio una camera matrimoniale ed un bagno privato. Al piano principale si trovano inoltre una cucina separata, una seconda camera da letto e un bagno.

All’esterno, un ampio giardino privato circonda la proprietà, offrendo privacy e tranquillità. Completa la zona outdoor un annesso indipendente elegantemente rifinito, che ospita una Jacuzzi, ideale per momenti di relax con vista sulle colline umbre.

La proprietà dispone, inoltre, di due posti auto privati.

Caratteristiche principali
Codice:
V003505
Città:
Magione (Agello)
Categoria:
Loft
Locali:
3
Camere:
2
Bagni:
2
Mq:
171
Mq Giardino:
430
Piano:
Terra
Anno:
2025
Classe energetica:
Non applicabile
Stato Immobile:
Nuovo
Grado:
Signorile
Posizione:
Collina
Panorama:
Vista Aperta
Orientamento:
Nord Ovest Sud Est
Lati Liberi:
3
Giardino:
Privato
Arredi:
Non Arredato
Tipo Soggiorno:
Salone
Tipo Cucina:
Abitabile
Riscaldamento:
Autonomo
Tipo Riscaldam.:
Caldaia
Tipo Impianto:
Pavimento
Fonte Energetica:
Metano
Acqua Calda:
Autonoma
Infissi:
Legno Doppio Vetro
Serramenti:
Ottimo
Pavim. Giorno:
Parquet
Pavim. Notte:
Parquet
Accessori
Doppi Vetri
Doppio ingresso
Ingresso indipendente
Mappa
Via dei Casengoli - Magione (PG)
Cookie preference