APPARTAMENTO TRE CAMERE VALFABBRICA

120.000 €
204 m²
Superficie
4
Locali
3
Camere
2
Bagni
in vendita
appartamento
Valfabbrica
Descrizione
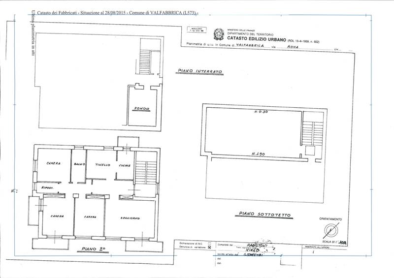
A Valfabbrica, in contesto residenziale tranquillo e ben collegato, proponiamo in vendita un appartamento posto al primo piano di una casa bifamiliare composta da sole due unità abitative. La proprietà si caratterizza per gli ampi spazi interni e per l’ottima luminosità.

L’ingresso, di generose dimensioni, conduce a un soggiorno doppio dotato di camino e di due ampi infissi che garantiscono un’elevata illuminazione naturale. La zona giorno comprende inoltre un tinello e una cucina separata, ambienti che contribuiscono alla funzionalità e alla comodità dell’abitazione.

La zona notte è composta da tre camere matrimoniali, tutte provviste di armadio a muro, e da due bagni finestrati. L’immobile dispone di tre balconi che offrono affacci aperti e favoriscono una buona areazione degli ambienti. Tra le dotazioni tecniche si segnalano infissi in legno con doppio vetro, impianto elettrico recentemente rinnovato con salvavita, impianto di riscaldamento con tubazioni in rame e radiatori in alluminio.

Completano la proprietà i posti auto situati nel seminterrato con accesso a garage comune e una soffitta collocata al piano sottotetto.

Soluzione ideale per chi desidera un’abitazione ampia e luminosa, senza spese condominiali e in una posizione comoda ai principali servizi del territorio.
Caratteristiche principali
Codice:
V003489
Città:
Valfabbrica
Categoria:
Appartamento
Locali:
4
Camere:
3
Bagni:
2
Mq:
204
Posti auto:
2
Balconi:
3
Mq Balcone:
12
Piano:
1
Anno:
1965
Anno ristrutturazione:
2000
Classe energetica:
Non classificabile
Stato Immobile:
Ottimo
Grado:
Signorile
Posizione:
Centro
Orientamento:
Nord Ovest Sud Est
Lati Liberi:
4
Giardino:
Comune
Arredi:
Non Arredato
Tipo Soggiorno:
Doppio
Tipo Cucina:
Abitabile
Riscaldamento:
Autonomo
Tipo Riscaldam.:
Caldaia
Tipo Impianto:
Radiatori
Fonte Energetica:
Metano
Acqua Calda:
Autonoma
Raffrescamento:
No
Infissi:
Legno Doppio Vetro
Serramenti:
Buono
Persiana:
Tapparella PVC
Pavim. Giorno:
Ceramica
Pavim. Notte:
Ceramica
Pavim. Cucina:
Ceramica
Pavim. Bagno:
Ceramica
Accesso Disabili:
No
Accesso interno disabili:
Non accessibile
Isolamento:
Non presente
Isolamento termico:
Nessuno
Isolamento acustico:
Nessuno
Accessori
Armadio a Muro
Camino
Canna fumaria
Cancello Elettrico
Doppi Vetri
Fibra Ottica
Planimetrie
Virtual tour
Mappa
Via Roma, 42 - Valfabbrica (PG)
Cookie preference