BILOCALE IN VENDITA A FERRO DI CAVALLO

110.000 €
85 m²
Superficie
2
Locali
1
Camere
1
Bagni
1
Box
in vendita
2 locali
Perugia [Ferro di Cavallo]
Descrizione
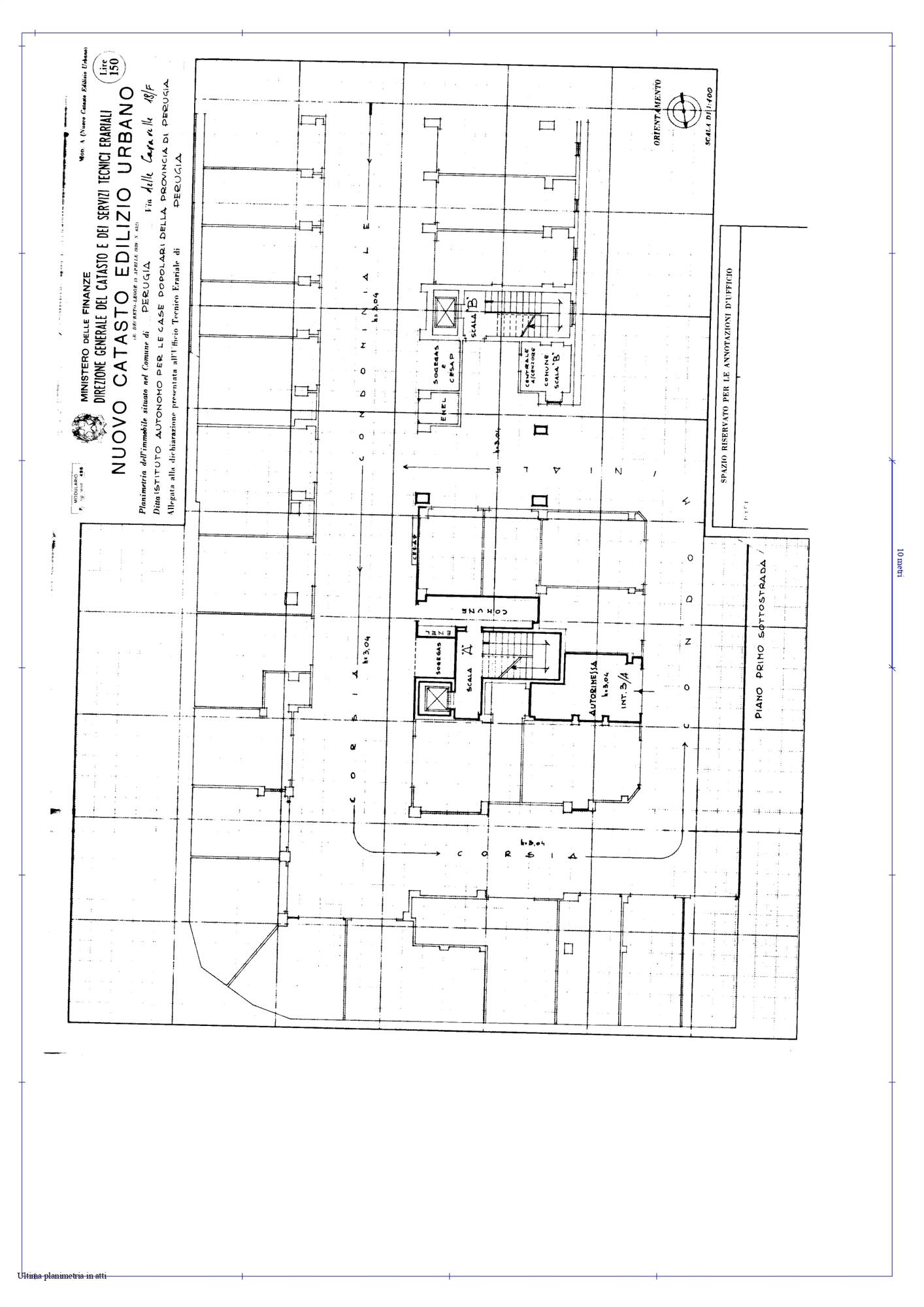
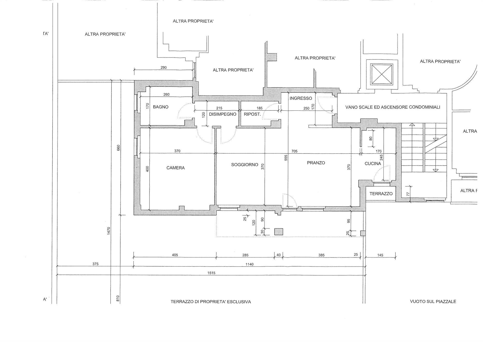
In posizione centrale e strategica, a pochi passi da tutti i principali servizi e attività commerciali, proponiamo in vendita un elegante appartamento recentemente ristrutturato con finiture moderne e ricercate.
L’abitazione si apre su un accogliente ingresso che conduce a un luminoso soggiorno doppio, perfetto per momenti di relax e convivialità, con adiacente un pratico angolo cottura dal design funzionale.
Dalla zona giorno si accede al lastrico solare di 150 mq, ideale per godere di piacevoli momenti all’aperto.
La proprietà dispone inoltre di un comodo ripostiglio, una spaziosa camera matrimoniale e un bagno finestrato, curato nei dettagli e dotato di tutti i comfort.

Completano la proprietà un comodo garage situato al piano seminterrato.
Inoltre è possibile ripristinare la seconda camera riducendo la metratura del soggiorno.
L’immobile è ideale per coppie o famiglie alla ricerca di comfort, praticità e una posizione privilegiata nel cuore della città.
Caratteristiche principali
Codice:
V003470
Città:
Perugia (Ferro di Cavallo)
Categoria:
2 locali
Spese condominiali:
480 € / anno
Locali:
2
Camere:
1
Bagni:
1
Mq:
85
Box:
1
Mq Box:
15
Terrazzi:
1
mq Terrazzo:
150
Piano:
1
Anno:
1986
Anno ristrutturazione:
2024
Classe energetica:
Non applicabile
Stato Immobile:
Ristrutturato
Grado:
Medio
Posizione:
Periferia
Panorama:
Vista Aperta
Orientamento:
Nord Ovest
Lati Liberi:
2
Giardino:
No
Arredi:
Solo Cucina
Tipo Soggiorno:
Soggiorno
Tipo Cucina:
Angolo Cottura
Riscaldamento:
Autonomo
Tipo Riscaldam.:
Caldaia a Condensazione
Tipo Impianto:
Radiatori
Fonte Energetica:
Metano
Acqua Calda:
Autonoma
Raffrescamento:
Split
Infissi:
Alluminio
Serramenti:
Ottimo
Persiana:
Tapparella PVC
Pavim. Giorno:
Laminato
Pavim. Notte:
Laminato
Pavim. Cucina:
Laminato
Accessori
Aria Condizionata
Ascensore
Fibra Ottica
Ripostiglio
Video Citofono
Zanzariere
Video
Mappa
Via Cristoforo Colombo - Perugia (PG)
Cookie preference