BILOCALE CON GIARDINO PRIVATO A RIPA

70.000 €
55 m²
Superficie
2
Locali
1
Camere
1
Bagni
in vendita
2 locali
Perugia [Ripa]
Descrizione
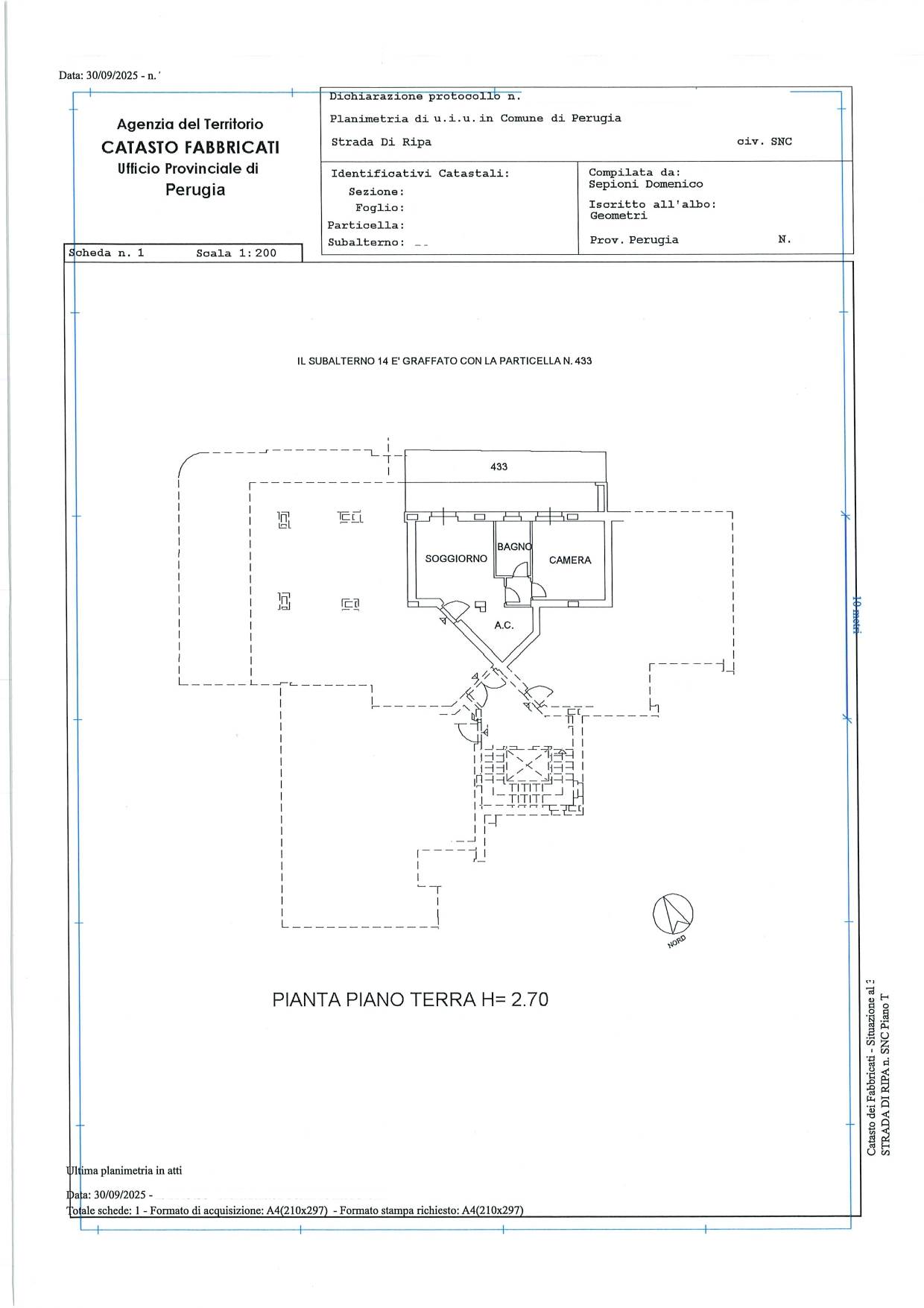
Nella tranquilla e panoramica zona residenziale di Ripa, a pochi minuti dal centro di Perugia, proponiamo in vendita un accogliente bilocale con giardino privato di circa 40 mq, ideale per chi desidera vivere in un contesto sereno ma ben collegato.

L’appartamento, situato al piano terra di una palazzina di recente costruzione (anno 2012), si presenta in ottime condizioni ed è dotato di riscaldamento a pavimento, che garantisce un comfort termico uniforme e un’elevata efficienza energetica.

L’ingresso si apre su un luminoso soggiorno con angolo cottura, perfettamente organizzato per offrire funzionalità e convivialità. La camera matrimoniale, spaziosa e ben illuminata, rappresenta un ambiente accogliente e rilassante, mentre il bagno finestrato è moderno e curato nei dettagli.

Il giardino privato di circa 40 mq è il vero valore aggiunto della proprietà: uno spazio esterno esclusivo ideale per pranzi all’aperto, momenti di relax o per chi ha animali domestici.

Situato in un contesto tranquillo e ben servito, con parcheggi nelle immediate vicinanze e collegamenti rapidi verso Perugia e le principali vie di comunicazione, l’immobile è perfetto sia come abitazione principale che come investimento a reddito.

Un’opportunità da non perdere per chi cerca tranquillità, comfort moderno e indipendenza a un prezzo davvero interessante.
Caratteristiche principali
Codice:
V003464
Città:
Perugia (Ripa)
Categoria:
2 locali
Spese condominiali:
240 € / anno
Locali:
2
Camere:
1
Bagni:
1
Mq:
55
Mq Giardino:
40
Piano:
Terra
Anno:
2012
Classe energetica:
Non applicabile
Stato Immobile:
Ottimo
Grado:
Medio
Posizione:
Periferia
Panorama:
Vista Aperta
Lati Liberi:
2
Giardino:
Privato
Arredi:
Non Arredato
Tipo Soggiorno:
Soggiorno
Tipo Cucina:
Angolo Cottura
Riscaldamento:
Autonomo
Tipo Riscaldam.:
Caldaia a Condensazione
Tipo Impianto:
Pavimento
Fonte Energetica:
Metano
Acqua Calda:
Autonoma
Infissi:
Legno Doppio Vetro
Serramenti:
Ottimo
Accessori
Doppi Vetri
Porta Blindata
Mappa
Via Adolfo Cicogna - Perugia (PG)
Cookie preference