TRILOCALE DA RISTRUTTURARE CASTIGLIONE DELLA VALLE

55.000 €
92 m²
Superficie
3
Locali
2
Camere
2
Bagni
in vendita
3 locali
Marsciano [Castiglione della Valle]
Descrizione
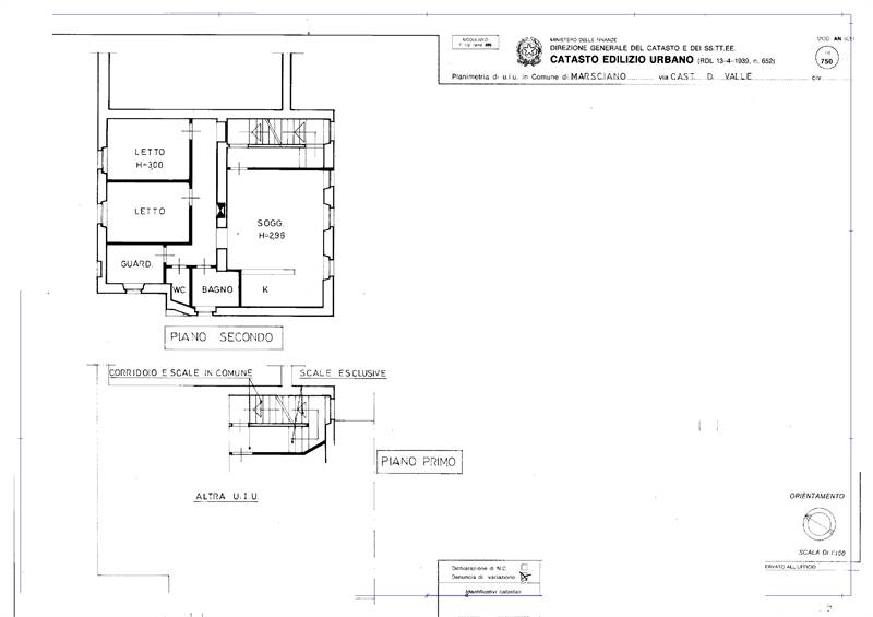
Nel cuore del caratteristico borgo di Castiglione della Valle, in posizione centrale e suggestiva, proponiamo in vendita un appartamento trilocale situato al secondo piano di una piccola palazzina affacciata sulla piazza principale, a pochi passi dalla chiesa del paese.

L’immobile, di circa mq 92, offre una distribuzione funzionale degli spazi e si compone di:
Ingresso, soggiorno con angolo cottura, due camere da letto, cabina armadio,
bagno finestrato, bagno di servizio.

L’abitazione si presenta completamente da ristrutturare, offrendo tuttavia interessanti potenzialità per una personalizzazione completa, sia come residenza principale, sia come investimento per uso turistico o casa vacanze.

Completa la proprietà una soffitta mansardata di ampia metratura. L’ambiente, attualmente allo stato grezzo, offre un grande potenziale: con un intervento di ristrutturazione può essere trasformato in uno spazio abitabile, ideale per la realizzazione di ulteriori camere, studio o zona living. Una soluzione versatile, perfetta per chi desidera personalizzare e valorizzare al meglio la proprietà.

La posizione, adiacente a tutti i principali servizi e immersa nell’atmosfera autentica del centro storico, rende questa proposta particolarmente interessante per chi è alla ricerca di un immobile con carattere e potenziale.
Caratteristiche principali
Codice:
V003415
Città:
Marsciano (Castiglione della Valle)
Categoria:
3 locali
Locali:
3
Camere:
2
Bagni:
2
Mq:
92
Piano:
2
Classe energetica:
Non applicabile
Stato Immobile:
Da Ristrutturare
Grado:
Medio
Posizione:
Centro
Panorama:
Vista Aperta
Lati Liberi:
1
Giardino:
No
Arredi:
Non Arredato
Tipo Soggiorno:
Soggiorno
Tipo Cucina:
Angolo Cottura
Riscaldamento:
Autonomo
Tipo Riscaldam.:
Caldaia
Tipo Impianto:
Termosifoni
Fonte Energetica:
Metano
Acqua Calda:
Autonoma
Raffrescamento:
No
Infissi:
Legno
Planimetrie
Mappa
Piazza della Vittoria , 5 - Marsciano (PG)
Cookie preference